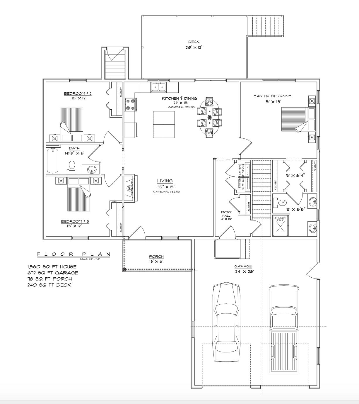
Charming brand new home to be built. Three bedroom, single-level ranch with thoughtful finishes, perfect for comfort and convenience and situated on 1.23 acres. The open concept kitchen, dining and living room feature vaulted ceilings that create a bright, spacious feel anchored by a gas fireplace for cozy evenings. Spacious… Read More kitchen includes five foot island awaiting your customization. Primary en suite with double vanity, two other spacious bedrooms, beautiful hardwood floors throughout living room, kitchen and dining area. Enjoy outdoor living with composite decking on both front porch and 12x14 back deck. Thoughtfully designed floor plan with one floor living offer accessibility and ease. Other plans available on neighboring lot. Read Less
Courtesy of Carrie Blair, The Gove Group Real Estate, LLC 603-778-6400
Listing Snapshot - source: Home Junction
Days Online
190
Last Updated
Property Type
Single Family
Beds
3
Full Baths
2
Square Ft.
1,560
Lot Size
1.66 Acres
Year Built
2025
MLS Number
5067531
30 Days Snapshot - source: Home Junction
30 Days Snapshot Of 03839
$407k
+57%
(avg) sold price
4
+33%
homes sold
14
-50%
(avg) days on market
Snapshot
Area Map
Additional Details
Property Access
Road Frontage: Yes
Building
Basement: Yes, 5 rooms, Built in 2025, 1,560 total finished sqft, Total stories: 1, Construction status: Pre-Construction, 1,560 finished sqft above grade
Roof
Asphalt Shingle
Basement
Basement access: Interior, Concrete, Unfinished
Floors
Carpet, Hardwood, Tile
Appliances & Equipment
Water Heater
Heating
Forced Air
Cooling
Central AC
Utilities
Electric: Underground
Garage
Garage: Yes, Garage capacity: 2
Lot
1.66 acres, 1,560 approx. sqft, 72,310 sqft
Parking
Driveway: Gravel
Property
Flood Zone: Unknown, Zoning: Residential, Seasonal: No
Sewer
Private
Find The Perfect Home
'VIP' Listing Search
Whenever a listing hits the market that matches your criteria you will be immediately notified.
This information is deemed reliable, but not guaranteed. The data relating to real estate displayed on this Site comes in part from the IDX Program of PrimeMLS. The information being provided is for consumers' personal, non-commercial use and may not be used for any purpose other than to identify prospective properties consumers may be interested in purchasing. Data last updated . Data last updated .
Confirm your time
Fill in your details and we will contact you to confirm a time.