894 Lafayette Road

Seabrook, NH 03874
Square Ft.
9,500
$17
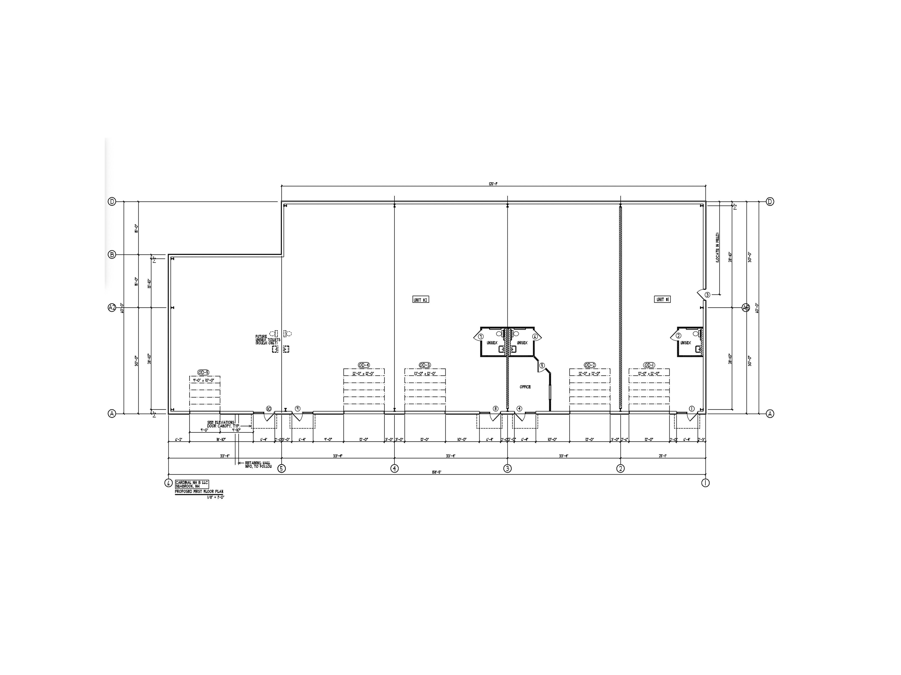
A freestanding warehouse/manufacturing building with a retail presence located next to the busy Rt 1 Seabrook retail corridor. High-clear height ceilings with bay doors make this property ideal for many uses. Rare ample parking with a storefront retail option makes this property unique. Available May 2026 for occupancy. High-traffic retailRead MoreRead Less
Courtesy of Stephen Cavanaugh, Keller Williams Realty Evolution 978-927-8700
Listing Snapshot
Days Online
62
Last Updated
Square Ft.
9,500
Lot Size
1 Acres
Year Built
2026
MLS Number
5075476
30 Days Snapshot Of 03874
$620k
+42%
(avg) sold price
5
0%
homes sold
24
-41%
(avg) days on market
Snapshot
Area Map
Additional Details
Appliances & Equipment
9500 elevators
Basement
Basement: No
Building
Ceiling Height: 20ft, Built in 2026, 9,500 total building sqft, 5 drive-in doors
Doors
Door Height: 12ft
Lot
43,560 sqft, 1 acre
Property
Road Frontage: No, Seasonal: No, 5 total units
Unit One
Unit 1 Type: Industrial, Unit 1 Level: 36-60 Months
Find The Perfect Home

'VIP' Listing Search

Whenever a listing hits the market that matches your criteria you will be immediately notified.

Join The List
Mortgage Calculator
Monthly Payment
$0
Alex Dumas
Agent
Agent profile image

Schools In The Area

Check out nearby schools with ratings and contact info.

Similar Listings

View More Listings

This information is deemed reliable, but not guaranteed. The data relating to real estate displayed on this Site comes in part from the IDX Program of PrimeMLS. The information being provided is for consumers' personal, non-commercial use and may not be used for any purpose other than to identify prospective properties consumers may be interested in purchasing. Data last updated .
Data last updated .