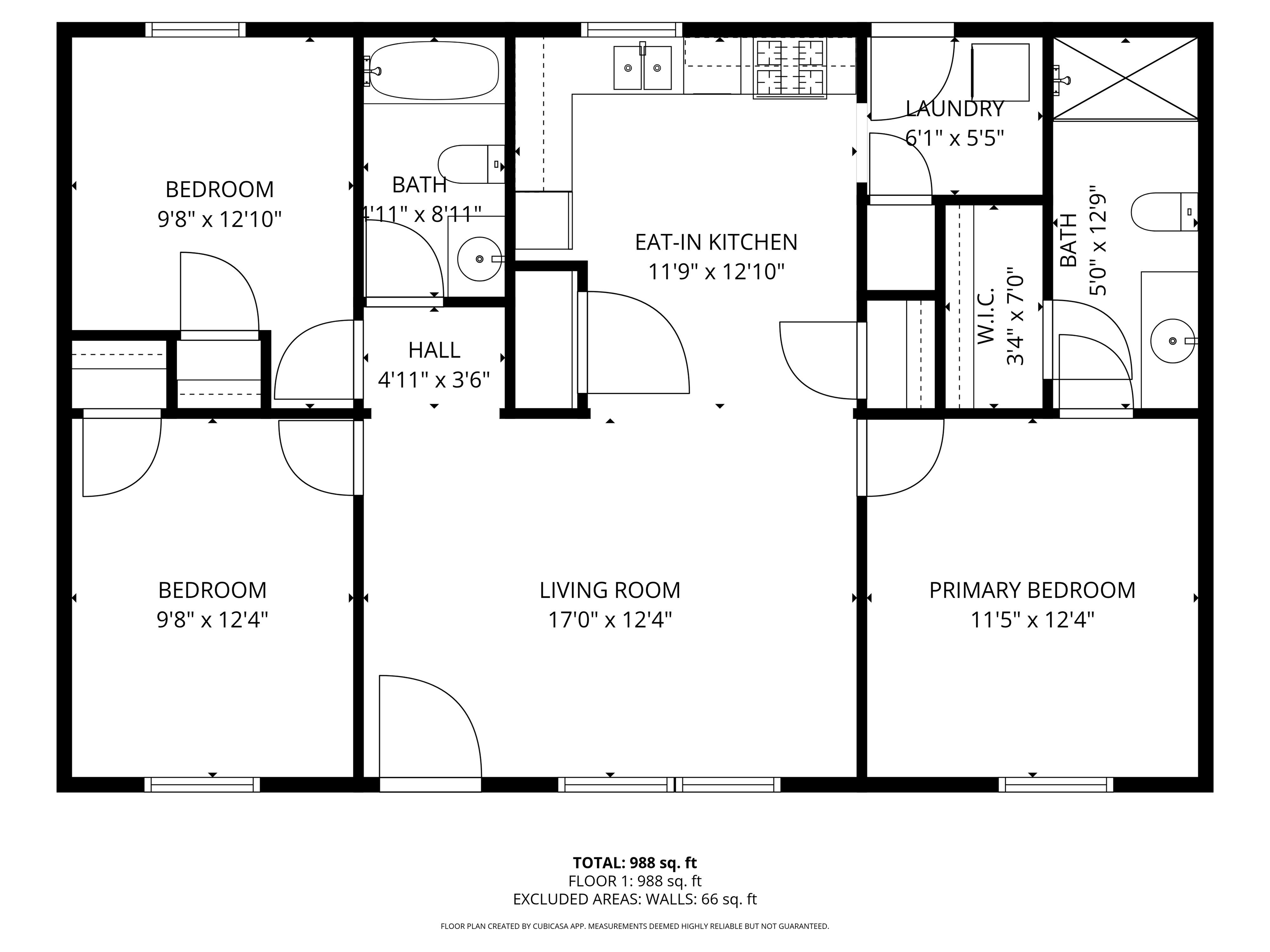
Nearly new, move-in ready, and set on a private, level lot; welcome to 19 Leisure Drive. Built in 2023 and thoughtfully designed for easy, one-level living with the modern finishes and low-maintenance lifestyle today’s buyers are searching for. Step inside to a bright, open-concept layout where the living room flows… Read More effortlessly into the eat-in kitchen, creating the perfect space for entertaining, hosting, or simply enjoying everyday life. The kitchen offers abundant cabinetry, modern appliances, and a layout that keeps everything within reach while still feeling open and inviting. Designed with privacy in mind, the primary suite is tucked away on one end of the home, featuring a spacious bedroom, walk-in closet, and en suite bath, your own quiet retreat at the end of the day. On the opposite side, two additional bedrooms and a full bath provide flexibility for guests, a home office, or growing needs. Just off the kitchen, a dedicated laundry area with a water filtration system adds convenience, while offering easy access to the backyard. Outside, the level 0.69-acre lot offers space to relax, entertain, garden, or expand without the maintenance of a larger property. A storage shed keeps tools and equipment neatly tucked away. With modern systems, low upkeep, and a location just minutes to Route 16, this home offers the rare combination of privacy and accessibility, ideal for commuters, second-home buyers, or anyone looking to simplify without sacrificing comfort. Schedule your private showing today and see for yourself. Read Less
Courtesy of Kate Grassi, KW Coastal and Lakes & Mountains Realty/Wolfeboro Phone: 603-833-9267
Listing Snapshot
Days Online
21
Last Updated
Property Type
Single Family
Beds
3
Full Baths
2
Square Ft.
1,067
Lot Size
0.69 Acres
Year Built
2023
MLS Number
5080833
30 Days Snapshot Of 03864
$355k
-10%
(avg) sold price
2
-60%
homes sold
49
-36%
(avg) days on market
Snapshot
Area Map
Additional Details
Property Access
Road Frontage: Yes
Building
Basement: No, 6 rooms, Built in 2023, 1,067 total finished sqft, Total stories: 1, Construction status: Existing, 1,067 finished sqft above grade
Roof
Asphalt Shingle
Heating
Propane, Forced Air
Cooling
None
Utilities
Electric: 100 Amp Service, Circuit Breaker(s)
Garage
Garage: No
Lot
0.69 acres, 1,067 approx. sqft, 30,056 sqft
Parking
Driveway: Dirt
Property
Flood Zone: No, Zoning: 1F RES, Seasonal: No
Sewer
Private, Septic
Taxes
Gross amount: $1,553
Find The Perfect Home
'VIP' Listing Search
Whenever a listing hits the market that matches your criteria you will be immediately notified.
This information is deemed reliable, but not guaranteed. The data relating to real estate displayed on this Site comes in part from the IDX Program of PrimeMLS. The information being provided is for consumers' personal, non-commercial use and may not be used for any purpose other than to identify prospective properties consumers may be interested in purchasing. Data last updated . Data last updated .
Confirm your time
Fill in your details and we will contact you to confirm a time.