21 W Chamberlain Road

Merrimack, NH 03054
Beds
3
Baths
2
Square Ft.
1,902
$625,000
Welcome to this charming Single Family Split Entry home in Merrimack, New Hampshire! This lovely home boasts 3 spacious bedrooms and 1 1/2 bathrooms, encompassing a total of 1902 square feet of comfortable living space. Situated on a generous .62 acre lot, this property offers plenty of outdoor space forRead MoreRead Less
Courtesy of Judi Farr, EXP Realty Cell: 603-493-6422
Listing Snapshot
Days Online
5
Last Updated
Property Type
Single Family
Beds
3
Full Baths
1
Partial Baths
1
Square Ft.
1,902
Lot Size
0.62 Acres
Year Built
1986
MLS Number
5085177
30 Days Snapshot Of 03054
$467k
0%
(avg) sold price
25
+13%
homes sold
8
-33%
(avg) days on market
Snapshot
Area Map
Additional Details
Property Access
Road Frontage: Yes
Building
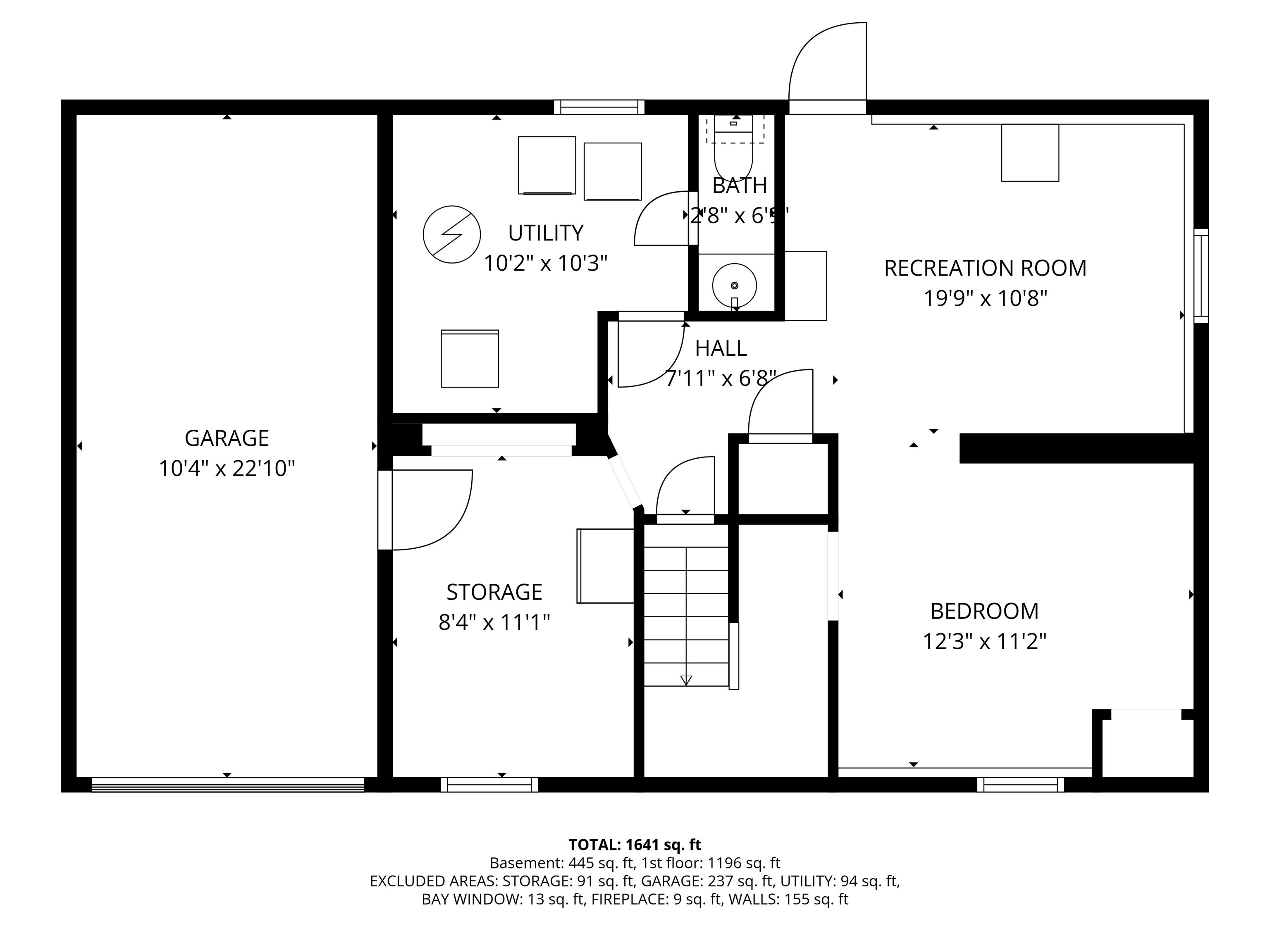
Basement: Yes, 10 rooms, Built in 1986, 1,902 total finished sqft, Total stories: 2, Construction status: Existing, 1,434 finished sqft above grade, 468 finished sqft below grade
Roof
Asphalt Shingle
Basement
Basement access: Walkout, Climate Controlled, Concrete, Daylight, Full, Insulated, Partially Finished, Interior Stairs, Walkout, Exterior Access
Floors
Carpet, Hardwood, Laminate, Tile
Appliances & Equipment
Dishwasher, Dryer, Microwave, Refrigerator, Washer, Gas Stove, Water Heater
Heating
Natural Gas, Forced Air, Vented Gas Heater
Cooling
Central AC
Utilities
Electric Company: Eversource, Electric: Circuit Breaker(s)
Garage
Garage: Yes, Garage capacity: 1
Lot
0.62 acres, 1,902 approx. sqft, 27,007 sqft
Parking
Driveway: Paved
Property
Flood Zone: Unknown, Zoning: RESIDE, Seasonal: No
Sewer
Public
Taxes
Gross amount: $8,205
Find The Perfect Home

'VIP' Listing Search

Whenever a listing hits the market that matches your criteria you will be immediately notified.

Join The List
Mortgage Calculator
Monthly Payment
$0
Alex Dumas
Agent
Agent profile image

Schools In The Area

Check out nearby schools with ratings and contact info.

Similar Listings

View More Listings

This information is deemed reliable, but not guaranteed. The data relating to real estate displayed on this Site comes in part from the IDX Program of PrimeMLS. The information being provided is for consumers' personal, non-commercial use and may not be used for any purpose other than to identify prospective properties consumers may be interested in purchasing. Data last updated .
Data last updated .