8 Old Bay Road

New Durham, NH 03855
Beds
2
Baths
2
Square Ft.
1,363
$319,900
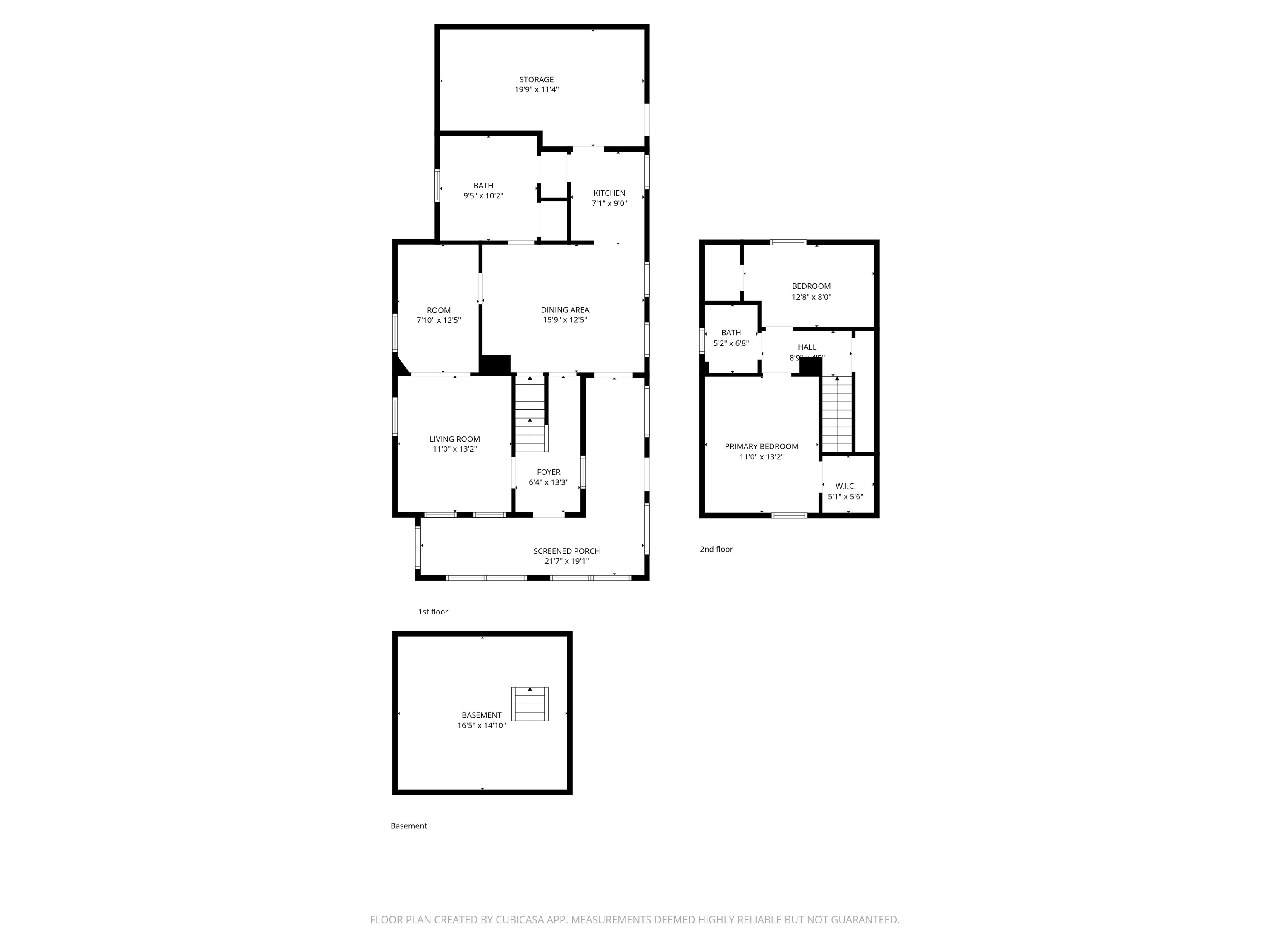
Welcome to 8 Old Bay Rd, New Durham, NH! This charming 2-bedroom, 1.5-bath home offers a wonderful blend of comfort, convenience, and character. Featuring an eat-in kitchen, dedicated laundry room, and a flexible layout, this home is perfect for a variety of lifestyles. Recent updates include newer flooring, beautiful woodRead MoreRead Less
Courtesy of Nicole Daigle, EXP Realty Cell: 603-767-8214
Listing Snapshot
Days Online
0
Last Updated
Property Type
Single Family
Beds
2
Full Baths
1
Partial Baths
1
Square Ft.
1,363
Lot Size
1 Acres
Year Built
1940
MLS Number
5085801
30 Days Snapshot Of 03855
$1.03M
+116%
(avg) sold price
3
+50%
homes sold
54
+1250%
(avg) days on market
Snapshot
Area Map
Additional Details
Property Access
Road Frontage: Yes
Building
Basement: Yes, 6 rooms, Built in 1940, 1,363 total finished sqft, Total stories: 2, Construction status: Existing, 504 unfinished sqft below grade, 1,363 finished sqft above grade
Roof
Shingle
Basement
Basement access: Interior, Bulkhead, Concrete Floor, Crawl Space, Unfinished
Floors
Laminate, Tile, Vinyl, Wood
Appliances & Equipment
Dryer, Electric Range, Refrigerator, Washer, Domestic Water Heater
Heating
Oil, Steam
Cooling
None
Utilities
Electric Company: Eversource, Electric: 100 Amp Service, Circuit Breaker(s)
Garage
Garage: No
Lot
1 acre, 1,867 approx. sqft, 43,560 sqft
Parking
Driveway: Paved
Property
Flood Zone: Unknown, Zoning: TOWN C, Seasonal: No
Sewer
Private
Taxes
Gross amount: $4,014
Find The Perfect Home

'VIP' Listing Search

Whenever a listing hits the market that matches your criteria you will be immediately notified.

Join The List
Mortgage Calculator
Monthly Payment
$0
Alex Dumas
Agent
Agent profile image

Schools In The Area

Check out nearby schools with ratings and contact info.

Similar Listings

View More Listings

This information is deemed reliable, but not guaranteed. The data relating to real estate displayed on this Site comes in part from the IDX Program of PrimeMLS. The information being provided is for consumers' personal, non-commercial use and may not be used for any purpose other than to identify prospective properties consumers may be interested in purchasing. Data last updated .
Data last updated .